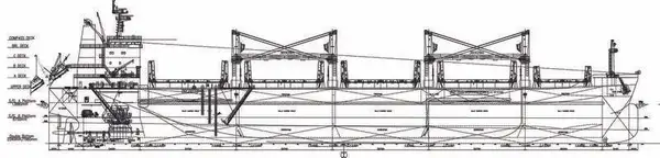
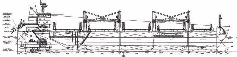
| 63 200 DWT puistlastilaevad | |
| Laeva id | 9862 |
| Kategooria | Puistlastilaev |
| Ehitusaasta | 2020 |
| Laeva lisamise kuupäev | 2025-10-25 |
| Lisas | Global Work Boats |
Mõõdetud kaal
| DWT | 63200 |
Laeva mõõtmed
| Kogupikkus (LOA), m | 199.9 |
| Sügavus, m | 9.9 |
Lisainformatsioon
| Iseliikuv | |
| Tekid | 1 |
| Sarnased laevad | Näita sarnaseid laevu |
| Taotlused | Ostusoovid kattuvad |
| Saada email |

